菏泽房产网(菏房网)讯:
近日
菏泽市自然资源和规划局发布了
“关于天墅南院规划设计方案
征求意见的公告”
详情如下:

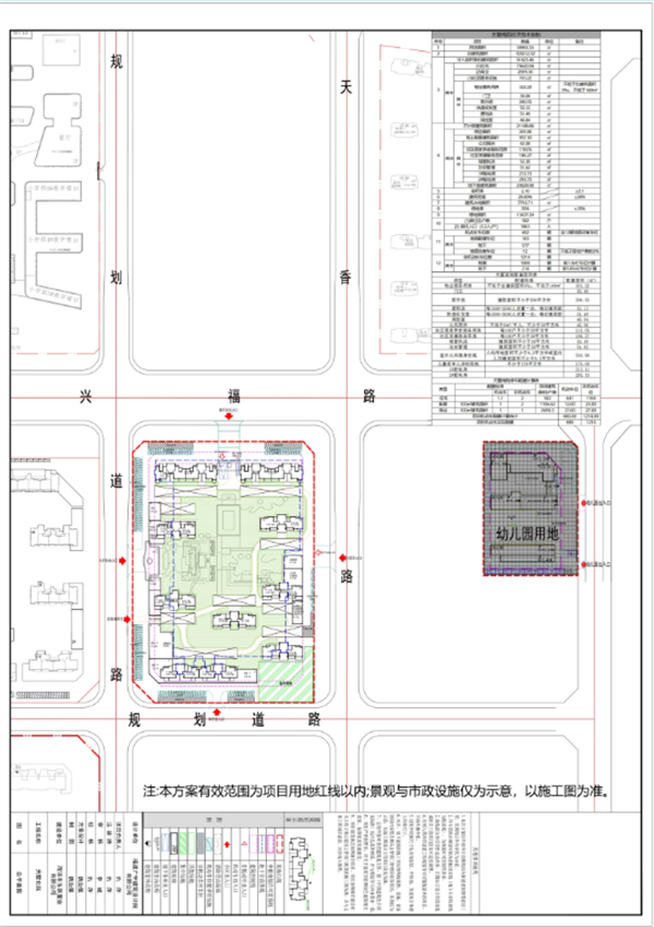
项目名称:天墅南院规划设计方案
项目位置:兴福路以南、天香路以西、规划道路以东、规划道路以北。
工程概况:
规划总用地面积38963.55平方米。总建筑面积103012.32平方米,其中地上建筑面积82982.42平方米,计容建筑面积81823.46平方米,容积率2.1,建筑密度20%,绿地率35%。居住户数582户,机动车停车位692个,其中地上停车位103个,地下停车位577个,非机动车停车位1214个,地上非机动车位1000个,地下非机动车位214个。
日照分析情况:该项目内、外部满足日照要求
征求期限:2025年10月24日——2025年11月3日

现房、准现房、特价房
尽在菏泽房盟团购中…
菏泽房盟团购微信!加好友需注明:购房或团购字样
报名咨询电话:0530-5361199

恒大绿洲 3室2厅2卫 133.64㎡
牡丹区87万元
中达水发城府认购一套,认购价格5360元/平米
牡丹区待定
单县中央花园 3室2厅2卫 139㎡
单县64万元
精装修公寓,家具家电齐全出售
牡丹区28.5万元
高平小区 3室1厅1卫 93㎡
牡丹区63万元
菏泽四季花城小区 2室1厅1卫 75.79㎡
牡丹区45万元