菏泽房产网(菏房网)讯:
菏泽市自然资源和规划局
关于天墅北院规划设计方案
征求意见的公告

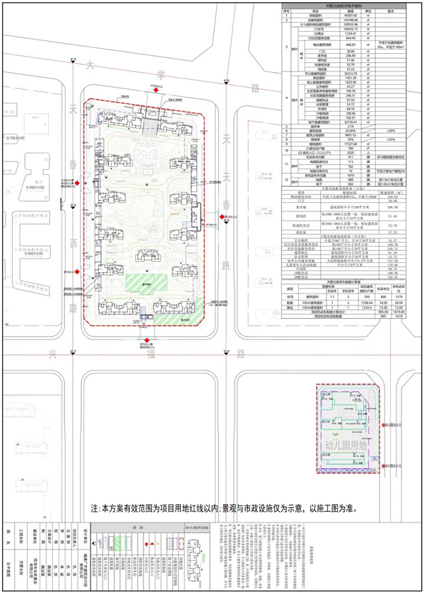
项目名称:天墅北院规划设计方案
项目位置:大学路以南、天香路以西、规划道路以东、兴福路以南。

工程概况:规划总用地面积49507.65平方米。总建筑面积143748.66平方米,其中地上建筑面积111009.25平方米,计容建筑面积108533.96平方米,容积率2.19,建筑密度20%,绿地率35%。居住户数789户,机动车停车位911个,其中地上停车位113个,地下停车位782个,非机动车停车位1619个,地上非机动车位969个,地下非机动车位650个。
日照分析情况:该项目内、外部满足日照要求。
征求期限:2025年9月19日--2025年9月28日
建设单位:菏泽市东跃置业有限公司
菏泽市自然资源和规划局
关于菏泽市公共实训基地
(菏泽市职业教育园区院内增建)
规划设计方案征求意见的公告

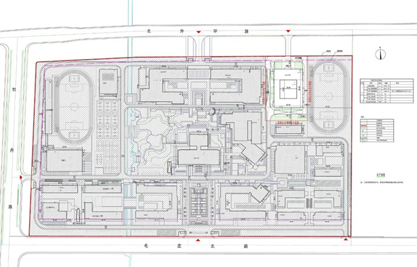
项目名称:菏泽市公共实训基地(菏泽市职业教育园区院内增建)规划设计方案
项目位置:北外环路以南,牡丹路以东,毛庄北路以北,回迁安置区以西。

工程概况:方案拟新建建筑面积29641.99平方米,其中地上建筑面积26613.09平方米,地下建筑面积3028.90平方米。增建后市职教园区容积率0.83,建筑密度22.57%,绿地率30.35%,机动车停车位416个。
征求期限:2025年9月16日--2025年9月24日
建设单位:菏泽市教育和体育局
菏泽市自然资源和规划局
关于成阳路(长江路-万福河北路)
线性管线市政工程规划设计方案
征求意见的公告

项目名称:成阳路(长江路-万福河北路)线性管线市政工程。
项目位置:成阳路(长江路-万福河北路)。

工程概况:该菏泽市牡丹区水务局负责实施,本次项目实施范围为成阳路(长江路-万福河北路)
公示期限:2025年9月19日--2025年9月28日
建设单位:菏泽市牡丹区水务局
现房、准现房、特价房
尽在菏泽房盟团购中…
菏泽房盟团购微信!加好友需注明:购房或团购字样
报名咨询电话:0530-5361199

恒大绿洲 3室2厅2卫 133.64㎡
牡丹区87万元
中达水发城府认购一套,认购价格5360元/平米
牡丹区待定
单县中央花园 3室2厅2卫 139㎡
单县64万元
精装修公寓,家具家电齐全出售
牡丹区28.5万元
高平小区 3室1厅1卫 93㎡
牡丹区63万元
菏泽四季花城小区 2室1厅1卫 75.79㎡
牡丹区45万元